Ngôi nhà ống với thiết kế độc, lạ ở Vinh "gây sốt" trên báo Mỹ
Nằm trong một khu dân cư cũ của thành phố Vinh (Nghệ An), ngôi nhà ống 4 tầng với lối thiết kế vô cùng đặc biệt, chan hòa với thiên nhiên vừa xuất hiện ấn tượng trên tờ tạp chí kiến trúc nổi tiếng thế giới Archdaily.
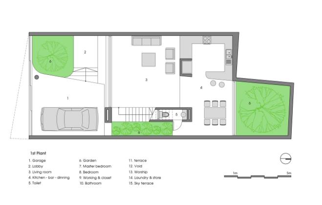
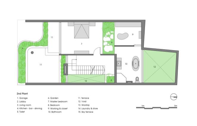
Trên diện tích 120m2, ngôi nhà được xây 4 tầng với cấu trúc không gian theo lối phân sàn phổ biến của nhà phố Việt Nam, nhằm tạo cho người sử dụng một cảm giác thân quen cũng như hiệu quả sử dụng tối đa về mặt diện tích.
Mỗi sàn nhà lại được thiết kế như một khu vườn khác nhau, ở đó đan xen giữa những khoảng vườn nhỏ là các không gian chức năng. Điều này tạo cho không gian liên tục theo chiều ngang từng tầng và tạo ra hiệu quả trong ngoài lẫn lộn không rõ ràng, người sử dụng đi vào nhà có cảm giác đi ra và ngược lại.
Ngôi nhà nhỏ được thiết kế theo phương châm "kiến trúc là cầu nối" giúp cho những người trong gia đình luôn cảm nhận được sâu sắc mối liên kết giữa ký ức và hiện tại, giữa con người với thiên nhiên....

Ngôi nhà ống 4 tầng với những mảnh vườn xanh mát nằm trong một khu dân cư cũ của thành phố Vinh (Nghệ An).

Xung quanh là những khu nhà thấp tầng. Với lợi thế hướng nam nên ngôi nhà này luôn được hưởng không khí mát mẻ quanh năm.

Trên diện tích 120m2 ngôi nhà được xây 4 tầng với cấu trúc không gian theo lối phân sàn phổ biến của nhà phố Việt Nam.

Không gian tầng 1 dành cho khu vực để xe, phòng khách, bếp và khu vực ăn uống rộng thoáng. Bên cạnh đó còn có những khoảng vườn nhỏ nơi giếng trời tràn ngập cây xanh.

Công trình nằm trong vùng đất thấp, bị ngập lụt về mùa mưa nên nền tầng một được đẩy lên cao so với mặt đường. Không gian phòng khách tuyệt đẹp với bộ bàn ghế gỗ bóng loáng.

Không gian bếp và bàn ăn rộng thoáng được bố trí bên trong.

Các khoảng vườn nhỏ kết hợp với giếng thông tầng lấy ánh sáng từ trên xuống, kết nối các tầng theo chiều đứng mang ánh sáng và gió trời tràn ngập không gian.

Cây xanh là yếu tố đặc biệt quan trọng trong ngôi nhà này, nó xuất hiện ở khắp mọi nơi mang đến màu xanh tươi mát và không khí trong lành cho con người.

Phía trước mặt hướng Nam của ngôi nhà được thiết kế theo lối mở hoàn toàn để đón gió mát.


Càng lên cao các sàn nhà càng lùi lại để tạo điểm nhìn cho con ngõ hẹp trước mặt.

Mỗi sàn nhà lại được thiết kế như một khu vườn khác nhau , đan xen giữa những khoảng vườn nhỏ là các không gian chức năng.

Điều này tạo cho không gian liên tục theo chiều ngang và khiến chủ nhà có cảm giác sống ở trong nhà mà như ở ngoài trời và ngược lại.


Góc nghỉ ngơi lý tưởng tràn ngập cây xanh và ánh sáng mặt trời.

Phòng tắm rộng thoáng được thiết kế ngay cạnh giếng trời.

Sơ đồ bố trí không gian tầng 1.

Sơ đồ bố trí không gian tầng 2.

Sơ đồ bố trí không gian tầng 3.

Sơ đồ bố trí không gian tầng 4.

Không gian tầng mái và mặt cắt của ngôi nhà.
Theo Nhịp sống kinh tế/Archdaily
Không có nhận xét nào:
Đăng nhận xét